DIN Edelstahl Einbautreppe 3 Stufen, bis 0,75 m
Haben Sie Fragen zu diesem Produkt?
Gern beraten wir Sie in einem persönlichem Gespräch.
DIN Edelstahl Einbautreppe - Komfort und Sicherheit für Ihren Pool
Ein bequemer und sicherer Zugang ist für jedes Schwimmbad essenziell. Mit der DIN Edelstahl Einbautreppe entscheiden Sie sich für eine hochwertige Lösung, die speziell für den Einsatz in öffentlichen Bädern, Therapiebecken und anspruchsvollen privaten Anlagen konzipiert wurde. Die breiten Stufen und der stabile Handlauf ermöglichen einen mühelosen Ein- und Ausstieg, der auch für Kinder und ältere Menschen bestens geeignet ist. Dank der Einhaltung der strengen Norm DIN EN 13451-2 setzen Sie auf geprüfte Qualität und Langlebigkeit.
Vorteile der DIN Edelstahl Einbautreppe
- Maximale Sicherheit: Konstruiert und gefertigt nach DIN EN 13451-2 für öffentliche und private Bäder.
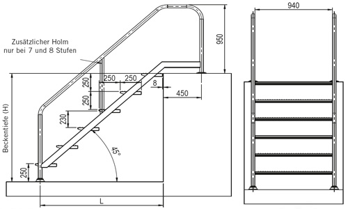
- Komfortabler Einstieg: Extra breite Stufen (940 mm Innenmaß) erleichtern den Zugang erheblich.
- Rutschhemmung: Strukturierte Oberflächen auf den Stufen minimieren das Ausrutschrisiko.
- Langlebiges Material: Gefertigt aus hochglanzpoliertem Edelstahl V4A für hohe Beständigkeit.
- Komplettes Set: Lieferung inklusive passender Leitereinbauhülsen für eine einfache Montage.
- Flexibilität: Ideal auch für Rehabilitations- und Übungsbecken geeignet.
Material und Beschaffenheit
Die DIN Edelstahl Einbautreppe besteht aus hochwertigem Edelstahl V4A (Werkstoff 1.4404/1.4571). Dieses Material zeichnet sich durch seine hohe Korrosionsbeständigkeit in Süßwasserpools und seine exzellente Stabilität aus. Die Oberfläche ist hochglanzpoliert, was nicht nur edel aussieht, sondern auch die Pflege erleichtert. Dennoch ist bei der Wasserpflege Vorsicht geboten: V4A Edelstahl ist nicht salzwassertauglich. Für Schwimmbäder mit Salzelektrolyse oder Hydrolyse (Salzgehalt > 1,5 g/l) müssen Komponenten aus Titan oder Bronze verwendet werden, da sonst Korrosionsschäden auftreten können.
Anwendungsbereiche
Diese Treppe ist die erste Wahl für öffentliche Schwimmbäder, in denen die Einhaltung der Sicherheitsnormen verpflichtend ist. Durch das Innenmaß von 940 mm erfüllt sie die Vorgaben der DIN EN 13451-2 für den öffentlichen Bereich. Auch in privaten Pools bietet sie einen Hauch von Luxus und deutlich mehr Komfort als herkömmliche Leitern. Besonders in Therapie- und Rehabilitationszentren bewährt sich die breite Trittfläche für einen sicheren Halt.
Zusätzlicher Holm bei Einbautreppe 7- und 8-stufig. Auf Anfrage sind DIN Treppen auch als Sonderausführung lieferbar, z. B. einseitiger oder in Form und Ausführung veränderter Handlauf, abweichende Ausladung hinter Beckenkante, abweichende Treppenschräge, gekürzte Holme für Flanschmontage, Unterschwimmschutz, Kniestrebe etc. Anfragen für Sonderausführungen immer mit bemaßter Zeichnung.

Technische Daten
| Stufenanzahl | Höhe (H) | Länge (L) |
|---|---|---|
| 3 | 750 mm | 700 mm |
| 4 | 1000 mm | 950 mm |
| 5 | 1250 mm | 1200 mm |
| 6 | 1500 mm | 1450 mm |
| 7 | 1750 mm | 1700 mm |
| 8 | 2000 mm | 1950 mm |
Die nebenstehende Tabelle zeigt die Maße für die verschiedenen Stufenvarianten. Bitte beachten Sie die genauen Abmessungen für Ihren Beckentyp, um eine optimale Passform zu gewährleisten.
Fragen & Antworten zu DIN Edelstahl Einbautreppe
- Ist die Treppe für Salzwasserpools geeignet?
Nein. V4A Edelstahl ist nicht beständig gegen Salzwasserelektrolyse. Für Salzwasserbecken benötigen Sie Leitern aus Titan oder Bronze. - Erfüllt die Treppe die Anforderungen für öffentliche Bäder?
Ja, die Treppe ist gemäß DIN EN 13451-2 konzipiert und bietet die geforderte Stufenbreite von mindestens 940 mm für öffentliche Anlagen. - Wie breit sind die Stufen genau?
Das Innenmaß der Stufen beträgt 940 mm, was einen sehr bequemen Ein- und Ausstieg ermöglicht. - Was ist im Lieferumfang enthalten?
Die Lieferung umfasst die komplette Treppe, die notwendigen Schrauben sowie die Leitereinbauhülsen zur Befestigung im Boden. - Kann die Treppe nachträglich eingebaut werden?
Ja, sofern das Fundament für die Einbauhülsen vorbereitet werden kann oder entsprechende Flanschbefestigungen (Sonderanfertigung) genutzt werden. - Wie rutschfest sind die Stufen?
Die Stufen verfügen über eine speziell strukturierte Oberfläche, die auch bei Nässe einen sicheren Halt bietet und das Ausrutschen verhindert. - Gibt es Ersatzteile für diese Treppe?
Ja, Verschleißteile wie Stufenauflagen oder Befestigungselemente können in der Regel nachbestellt werden. - Benötige ich einen Fachbetrieb für die Installation?
Die Installation ist dank der mitgelieferten Hülsen unkompliziert, wir empfehlen jedoch die Montage durch Fachpersonal, um die Normkonformität sicherzustellen.
Sorgen Sie jetzt für einen sicheren und normgerechten Einstieg in Ihren Pool und bestellen Sie die DIN Edelstahl Einbautreppe bequem online!
Fluidra Deutschland GmbH
Bauhofstr. 18d
63762 Großostheim
www.astralpool.com/de/
Sicherheitstechnische Angaben in der Bedienungsanleitung und Anleitungsblättern, die dem Schwimmbecken beigefügt sind.
Vor dem Bau und der Benutzung des Schwimmbeckens müssen sämtliche Informationen in der Betriebsanleitung sorgfältig gelesen und verstanden werden. Warnhinweise, Anleitungen und Sicherheitsrichtlinien umfassen einige allgemeine Risiken in Bezug auf Freizeitbeschäftigung im Wasser, sie können jedoch nicht sämtliche Risiken und Gefährdungen in allen Fällen behandeln. Bei jeglicher Aktivität im Wasser wird Vorsicht, gesunder Menschenverstand und gutes Urteilsvermögen walten gelassen. Diese Angaben und Anleitungen müssen für die spätere Nutzung aufbewahrt werden.
Sicherheit von Nichtschwimmern:
• Es ist jederzeit eine ständige, aktive und wachsame Beaufsichtigung schwacher Schwimmer und Nichtschwimmer durch eine sachkundige erwachsene Aufsichtsperson erforderlich (es wird daran erinnert, dass das größte Risiko des Ertrinkens bei Kindern unter 5 Jahren besteht).
• Es wird eine sachkundige erwachsene Person bestimmt, die das Becken überwacht, wenn es benutzt wird.
• Schwache Schwimmer oder Nichtschwimmer sollten persönliche Schutzausrüstung tragen, wenn sie ins Schwimmbecken gehen.
• Wenn das Schwimmbecken nicht benutzt oder überwacht wird, werden sämtliche Spielsachen aus dem Schwimmbecken und seiner Umgebung entfernt, um zu verhindern, dass Kinder davon angezogen werden.
Sicherheitsvorrichtungen:
• Es wird empfohlen, eine Absperrung zu errichten (und sämtliche Türen und Fenster zu sichern, sofern zutreffend), um unberechtigten Zutritt zum Schwimmbecken zu vermeiden.
• Absperrungen, Beckenabdeckungen, Alarmanlagen oder ähnliche Sicherheitsvorrichtungen sind sinnvolle Hilfsmittel, ersetzen jedoch keine ständige und sachkundige Überwachung durch erwachsene Personen.
Sicherheitsausrüstung:
• Es wird empfohlen, Rettungsausrüstung (z. B. einen Rettungsring, Sanikasten) in der Nähe des Beckensaufzubewahren.
• Ein funktionierendes Telefon und eine Liste von Notrufnummern werden in der Nähe des Schwimmbeckens aufbewahrt.
Sichere Nutzung des Schwimmbeckens:
• Sämtliche Nutzer, insbesondere Kinder, werden dazu ermuntert, schwimmen zu lernen.
• Jeder der ein Schwimmbecken benutzt soll Erste Hilfe Maßnahmen (Herz-Lungen-Wiederbelebung) erlernen und diese Kenntnisse regelmäßig auffrischen. Das kann bei einem Notfall einen lebensrettenden Unterschied ausmachen.
• Sämtliche Beckenbenutzer, einschließlich Kinder, anweisen, was in einem Notfall zu tun ist.
• Niemals in flaches Wasser springen. Das kann zu schweren Verletzungen oder zum Tode führen.
• Das Schwimmbecken nicht benutzen, wenn man unter dem Einfluss von Alkohol, Drogen, Betäubungsmitteln, Medikamenten oder anderen Substanzen steht, welche die Fähigkeit zur sicheren Nutzung des Beckens beeinträchtigen können.
• Beckenabdeckungen vor dem Betreten des Schwimmbeckens vollständig von der Wasseroberfläche entfernen, wenn sie verwendet werden.
• Die Nutzer des Schwimmbeckens werden vor durch das Wasser verbreiteten Krankheiten geschützt, indem das Wasser stets aufbereitet und hygienisch unbedenklich gehalten wird. Die Richtlinien zur Wasseraufbereitung in der Gebrauchsanleitung werden zu Rate gezogen und eingehalten.
• Chemikalien (z. B. Produkte für die Wasseraufbereitung, Reinigung oder Desinfektion) außerhalb der Reichweite von Kindern aufbewahren.
• Abnehmbare Leitern sind auf einer waagerechten Fläche anzuordnen.
• Die nachstehenden nachstehenden Sicherheitszeichen müssen verwendet werden:
| Die Zeichen (in Bild B.1a und Bild B.1.b) sind an einer gut sichtbaren Stelle innerhalb von 2 m in der Nähe des Schwimmbeckens anzubringen. |
![]() ![]() |
| Es wird empfohlen, das Zeichen (in Bild B.2) an einer gut sichtbaren Stelle innerhalb von 2 m in der Nähe des Schwimmbeckens anzubringen. |
![]() |


